TOSCO

大治町大字三本木字西深田Ⅱ①A棟 限定1邸

property data
所在地
大治町大字三本木字西深田36番55
販売価格
未定(税込)
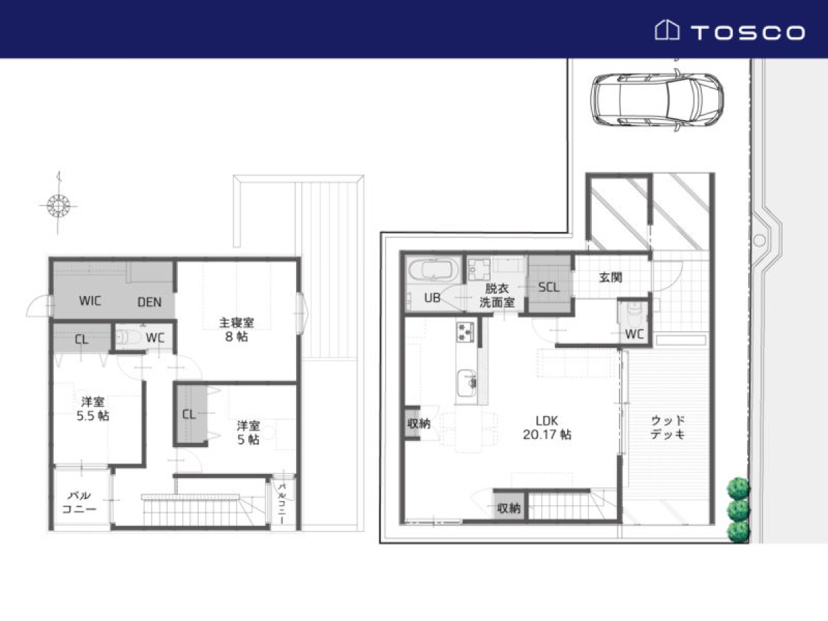
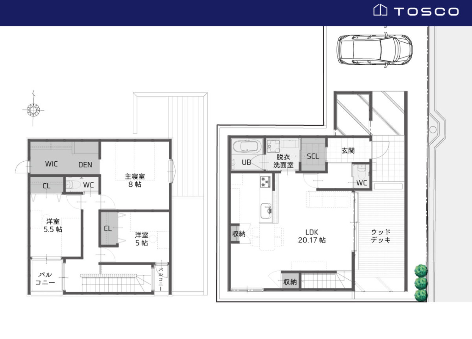
間取り
3LDK+S
建物面積
105.74㎡(31.98坪)
土地面積
165.38㎡(50.02坪)
アクセス
名鉄津島線「甚目寺」駅  約3200m(自転車15分)
名鉄バス「大治役場前」停 約400m(徒歩5分)

物件の特徴

最大4台並列駐車可能
20帖のLDK+ウッドデッキの開放感

■回遊性のある家事動線
玄関→洗面→キッチン→リビングの流れがスムーズ
■ウッドデッキ直結
LDKから外に繋がる空間で、開放感と外遊び・バーベキューなど多目的に使えます
■DENスペース付き
書斎・在宅ワーク・趣味コーナーとして使えるフレキシブルな空間
■収納が豊富
SCL、WIC、LDK内収納、階段下収納など、片付けやすい

<大治町大字三本木字西深田おすすめポイント>
・小学校まで徒歩9分なので、低学年のお子様も安心
・アオキスーパーが徒歩9分!買い忘れがあってもすぐに行ける距離で助かります
・大治南ICまで700m。高速が近いのでお出かけ時もラク!

近くのモデルハウスをご案内いたします。

間取り・区画

周辺環境

大治はなつね保育園 徒歩14分(約1100m)
大治町立大治南小学校 徒歩 9 分(約675m)
大治町立大治中学校 徒歩 20 分(約1600m)
アオキスーパー大治南店 徒歩 6 分(約434m)
交通
名鉄津島線「甚目寺」駅  徒歩 40 分
名鉄バス「大治役場前」停 徒歩 5 分
保育園・幼稚園
幼保連携型認定こども園大治幼稚園 徒歩 9 分
大治はなつね保育園        徒歩 14 分
ずいよう幼稚園          徒歩 19 分
学校
大治町立大治南小学校 徒歩 9 分
大治町立大治中学校  徒歩 20 分
コンビニ
ファミリーマート大治役場南店 徒歩 3 分
ローソン大治町三本木店    徒歩 6 分
スーパー
アオキスーパー大治南店 徒歩 6 分
アオキスーパー大治店  徒歩 10 分
ドラッグストア
スギドラッグ大治店 徒歩 4 分
公園
三本木西深田ちびっこ広場 徒歩 2 分
病院
むらかみファミリークリニック 徒歩 5 分
中原クリニック        徒歩 5 分
アクセス
大治町大字三本木字西深田36番55

設備・構造

LIXILキッチン

収納充実のLIXIL製キッチンを採用。
作業スペースも広く、食洗機・浄水器を搭載したシステムキッチンです。
人造大理石ワークトップ/カウンター高さ85センチ/浄水機付き/食器洗い乾燥機/シンク・コンロキャビネット/3口ガラストップコンロ

食器洗い乾燥機

約5人分の食器を一度に洗う事ができる食器洗乾燥機は手洗いに比べて節水効果あり。高温で洗浄できるため汚れを落としやすく、小さなお子様がいるご家庭では食器の除菌もできます。洗浄だけでなく、乾燥まで済ませられるので時短にも。夕食の後は食洗機に片付けを任せて家族団らんの時間をお楽しみください。

LIXILパウダールーム

バックガードがミラー下まであり洗面ボウルと一体成形になったキレイアップカウンター上から水が出るキレイアップ水栓は水栓周りに水がたまらないので清潔です。

LIXILバスルーム

1日の疲れを癒す浴室は、お子様と一緒に入る事ができるゆったりサイズです。
お湯が冷めにくいダブル保温構造の浴槽や、寒い冬場でもヒヤッとしないフロア「キレイサーモスフロア」、うずのチカラでゴミをまとめてくるりん!ポイ!お掃除が簡単な排水口、節水効果もある「エコアクアシャワー」など機能も充実しています。

LIXILトイレ

パワーストリーム洗浄は、強力な水流が便器鉢内のすみずみまで廻り、少ない水でもしっかり汚れを洗い流します。フチレス形状は、フチをまるごとなくし、サッとひと拭き。

天井高2.7m

TOSCOでは高い耐震性と堅牢性を確保しつつ、天井高2.7mを標準仕様としています。天井が高くなると開放感が生まれ、居心地の良い空間となります。また、窓の位置を高く設置することができるので部屋の奥まで太陽の光が届きます。

ハイサッシ

一般的な木造住宅の標準的な天井高は2.2~2.4mですが、TOSCOでは天井高2.7mが標準仕様です。天井高に合わせて2.4mのハイサッシを採用する事で部屋の奥まで光が届きます。TOSCOの特徴である「採光性」・「開放感」・「通気性」にこだわった間取り設計を是非現地にてご体感ください!

断熱(ウレタン)

トスコの家では熱損失をゆるしません。水で発砲させ、躯体で自己接着し隙間を作らない工法です。経年劣化が少なく長時間に渡って優れた気密断熱性を維持することができます。魔法瓶のようにお家をまるごと断熱。
家の内側を隅々まですっぽりと包み込み、外の熱気や寒気をシャットアウト!1年を通して、快適な住環境を保つことができます。

ベタ基礎

地震で地面が揺れたとき、真っ先に振動が伝わるのが基礎部分です。ベタ基礎とは、建築物や設備機械の直下全面を板状の鉄筋コンクリートにした基礎をいいます。不同沈下に対する耐久性や耐震性を増やすことが可能になります。TOSCOでは耐震性で一番大切である基礎部分の配筋を1邸1邸計算し、家の耐震力をあげています。

物件概要

価格
未定(税込)
所在地
大治町大字三本木字西深田36番55
交通
名鉄津島線「甚目寺」駅  約3200m(自転車15分)
名鉄バス「大治役場前」停 約400m(徒歩5分)
土地面積
165.38㎡ (50.02坪)
土地権利
所有権
建ぺい率/容積率
建ぺい率60% 容積率200%
構造
木造2階建て(在来工法)
完成予定
2026年2月
引き渡し時期
相談
施工
株式会社ライフサワダ
販売区画数
1
総区画数
1
用途地域
第一種住居地域
地目
その他制限事項
道路斜線・隣地斜線・日影制限
接道
東側公道幅員約3.8m
北側公道幅員約3.8m
設備
公営上下水道、中部電力、都市ガス
建築確認番号
第KS125-0420-56001号
売主
株式会社トスコ
取引形態
売主 

EVENT

イベント

  • 見学会
北名古屋市石橋 3棟同時見学会
開催日
2026年2月7日(土)~2月23日(月)
開催場所
北名古屋市石橋角畑86番 周辺
  • 見学会
まちかどモデルハウス見学会 in中村区下中村
開催日
2026年2月1日〜3月1日
開催場所
愛知県名古屋市中村区下中村町3丁目31番
  • 相談会
TOSCOの注文住宅ブランド「easel architecture(イーゼル)」
開催日
ご相談随時受付中
開催場所
あま市坂牧大塚
  • 相談会
愛知の家づくり無料相談会
開催日
2025年1月4日~
開催場所
大治町モデルハウス
  • 相談会
岐阜八代Studio ~住まいを考える~
開催日
2025年5月1日~
開催場所
岐阜市八代Studio

CONTACT