TOSCO

中川区千音寺IV⑥C棟・F棟 収納豊富で暮らしが整う4LDK/4月上旬完成予定 

property data
所在地
名古屋市中川区千音寺三丁目3126番
販売価格
未定(税込)
間取り
4LDK
建物面積
106.21~107.66㎡(32.12~32.56坪)
土地面積
134.87~136.70㎡(40坪)
アクセス
JR関西本線「春田」駅 徒歩33分
名鉄バス「千音寺」のりば 徒歩8分

物件の特徴

■4月完成予定■
収納豊富で暮らしが整う4LDK/千音寺インターまで車で5分

■C棟
・約18帖のLDKは家族団らんや子どもとの遊び場に十分な広さ
・パントリー+SCLで収納充実。食材や子ども用品・外遊び道具をすっきり整理できます

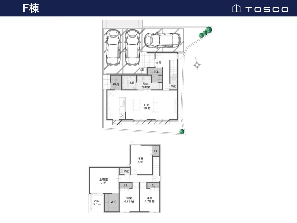
■F棟
・駐車スペース3台
・パントリーがあり、食材や日用品のストックに便利
・19帖のLDKはキッチン越しにお子様を見守ることができ安心

【おすすめポイント】
・千音寺インターまで車で5分!アクセス抜群!
・千音寺すみれこども園 徒歩8分
・赤星小学校 徒歩10分
・バロー千音寺店 徒歩10分

間取り・区画

周辺環境

名古屋市立赤星小学校まで徒歩10分
名古屋市立はとり中学校まで徒歩24分
千音寺すみれこども園まで徒歩8分
名古屋市富田図書館まで自転車7分
アズパークまで自転車6分
アズガーデンまで自転車4分
交通
JR関西本線「春田」駅   徒歩 33 分
名鉄バス「千音寺」のりば 徒歩 8 分
保育園・幼稚園
千音寺すみれこども園  徒歩 8 分
名古屋市富田第一保育園 徒歩 15 分
大治いずみ幼稚園    徒歩 17 分
学校
名古屋市立赤星小学校  徒歩 10 分
名古屋市立はとり中学校 徒歩 24 分
スーパー
バロー千音寺店     徒歩 11 分
アオキスーパー大治南店 徒歩 11 分
公園
郷東公園        徒歩4分
砂子山ノ浦ちびっこ広場 徒歩 14 分
ドラッグストア
ウエルシア名古屋千音寺店 徒歩 7 分
V・ドラッグ千音寺店    徒歩 10 分
アクセス
名古屋市中川区千音寺三丁目3126番

設備・構造

LIXIL キッチン

収納充実のLIXILのキッチンを採用
お手入れもラクラクで、日ごろの料理も
楽しくなります

食器洗乾燥機

約5人分の食器を一度に洗う事ができる食器洗乾燥機は手洗いに比べて節水効果あり。高温で洗浄できるため汚れを落としやすく、小さなお子様がいるご家庭では食器の除菌もできます。洗浄だけでなく、乾燥まで済ませられるので時短にも。夕食の後は食洗機に片付けを任せて家族団らんの時間をお楽しみください。

LIXIL バスルーム

落ち着いた色合いのアクセントパネルで、
リラックスできるバスタイム
換気ができる窓付き、浴室乾燥暖房あり

LIXIL 洗面化粧台

バックガードがミラー下まであり洗面ボウルと一体成形になったキレイアップカウンター上から水が出るキレイアップ水栓は水栓周りに水がたまらないので清潔です。

LIXIL トイレ

パワーストリーム洗浄は、強力な水流が便器鉢内のすみずみまで廻り、少ない水でもしっかり汚れを洗い流します。フチレス形状は、フチをまるごとなくし、サッとひと拭き。

硬質ウレタンフォーム

吹付け施工で100倍に発砲し、木材に対して半永久的に自己接着します。配管周りまで隙間ない施工。湿気に強い素材で沈下を防ぎます。
長期間に渡って性能を維持。安心の国産品使用/国家資格取得者が施工致します。

天井高2.7m

TOSCOでは高い耐震性と堅牢性を確保しつつ、天井高2.7mを標準仕様としています。天井が高くなると開放感が生まれ、居心地の良い空間となります。また、窓の位置を高く設置することができるので部屋の奥まで太陽の光が届きます。

LIXIL 断熱窓

断熱性能に優れた「高性能ハイブリッド窓」
熱の出入りが一番多い窓の断熱性を高めることで、一年中快適に過ごせる空間に。

不同沈下に強いベタ基礎

地震で地面が揺れたとき、真っ先に振動が伝わるのが基礎部分です。ベタ基礎とは、建築物や設備機械の直下全面を板状の鉄筋コンクリートにした基礎をいいます。不同沈下に対する耐久性や耐震性を増やすことが可能になります。TOSCOでは耐震性で一番大切である基礎部分の配筋を1邸1邸計算し、家の耐震力をあげています。

物件概要

価格
未定(税込)
所在地
名古屋市中川区千音寺三丁目3126番
交通
JR関西本線「春田」駅 徒歩33分
名鉄バス「千音寺」のりば 徒歩8分
土地面積
134.87~136.70㎡ (40坪)
土地権利
所有権
建ぺい率/容積率
建ぺい率60% 容積率200%
構造
木造2階建て(在来工法)
完成予定
2026年4月
引き渡し時期
要相談
施工
株式会社ライフサワダ
販売区画数
2
総区画数
6
用途地域
第一種住居地域
地目
宅地
その他制限事項
道路斜線・隣地斜線、日影制限、宅地造成等規制法、都市緑地法、電波法、景観法、31m高度地区、都市再生特別措置法
接道
北側公道幅員約2.8m
東側私道幅員約5m
設備
公営上水道、浄化槽、中部電力、都市ガス
建築確認番号
C棟:確認サービス第 KS125-0420-57485 号、F棟:確認サービス第 KS125-0420-57486 号
売主
株式会社トスコ
取引形態
売主 

EVENT

イベント

  • 見学会
北名古屋市石橋 3棟同時見学会
開催日
2026年2月7日(土)~2月23日(月)
開催場所
北名古屋市石橋角畑86番 周辺
  • 見学会
まちかどモデルハウス見学会 in中村区下中村
開催日
2026年2月1日〜3月1日
開催場所
愛知県名古屋市中村区下中村町3丁目31番
  • 相談会
TOSCOの注文住宅ブランド「easel architecture(イーゼル)」
開催日
ご相談随時受付中
開催場所
あま市坂牧大塚
  • 相談会
愛知の家づくり無料相談会
開催日
2025年1月4日~
開催場所
大治町モデルハウス
  • 相談会
岐阜八代Studio ~住まいを考える~
開催日
2025年5月1日~
開催場所
岐阜市八代Studio

CONTACT