TOSCO

日進市梅森町 平針駅まで自転車約8分/香久山小学校区の高台に注文住宅用地3区画販売開始

propertydata
所在地
日進市梅森町新田135番365、135番368、135番369
販売価格
A区画:2,680万円 B区画:2,450万円 C区画:2,590万円
土地面積
A区画:177.63㎡ B区画:162.77㎡ C区画:180.34㎡(A区画:53.73坪 B区画:49.23坪 C区画:54.55坪)
アクセス
名古屋市営地下鉄鶴舞線「平針」駅 自転車約8分
日進市コミュニティバス「梅森保育園」停 徒歩 8 分
【建築条件付き土地】
A区画:2,680万円 敷地面積:177.63㎡(53.73坪)
B区画:2,450万円 敷地面積:162.77㎡(49.23坪)
C区画:2,590万円 敷地面積:180.34㎡(54.55坪)

土地の特徴

<造成済>建築条件付き土地
最大54坪のゆとり。
落ち着いた住環境が魅力の日進市梅森町分譲地

■日進市梅森町おすすめポイント
【参考プランご用意しています】
「趣味と暮らす家」、「無駄をそぎ落としたシンプルな家」、「便利な家事動線と開放的な
 LDKの家」など。
詳しくはお気軽にお問い合わせ下さい。

■地下鉄鶴舞線「平針」駅  自転車8分
■土地間口はゆとりある約8.4m!陽当たり良好!希少価値の高い土地!
■造成済みなので、いつでも建築可能
■香久山小学校・日進西中学校通学エリア!子育て世帯に人気のエリア!
■平和堂、ドラッグユタカまで徒歩5分で帰り道のお買い物も便利

■TOSCOの建築条件付き土地とは?
注文住宅をてがけているトスコで住宅を建築していただく条件で土地販売しています。
宅地造成済のため、スピード感をもって着工可能!

\最大155万円お得!補助金&トスコ独自サービス/
みらいエコ住宅2026事業発表!トスコの長期優良住宅仕様なら、対象者(※)は75万円の補助を受けられます。
さらに、今なら期間中のご成約でトスコから80万円分の賞品をプレゼント!
トータル155万円お得に家を建てるチャンスです!補助金は予算に限りがあるため、早めのご検討をお願いいたします。
(※子育て世帯又は若者夫婦世帯が対象です)

POINT

区画

A区画:177.63㎡ B区画:162.77㎡ C区画:180.34㎡(A区画:53.73坪 B区画:49.23坪 C区画:54.55坪)
【建築条件付き土地】
A区画:2,680万円 敷地面積:177.63㎡(53.73坪)
B区画:2,450万円 敷地面積:162.77㎡(49.23坪)
C区画:2,590万円 敷地面積:180.34㎡(54.55坪)
特徴ピックアップ
更地渡し, スーパー 徒歩10分以内, 市街地が近い, 陽当り良好, 閑静な住宅地, 前道6m以上, 整形地, 緑豊かな住宅地, 都市近郊, 前面棟無, 都市ガス, 敷地40坪以上, 公園が近い, 参考プランあり, 建築条件付き土地, 並列2台らくらく駐車, 駅まで自転車10分以内, 土地間口8.0m以上
敷地面積53坪超、香久山小区の高台に注文住宅用地全3区画が販売開始!
【参考プランご用意しています】
趣味と暮らす家、無駄をそぎ落としたシンプルな家、便利な家事動線と開放的な
LDKの家など。
詳しくはお気軽にお問い合わせ下さい。
■地下鉄鶴舞線「平針」駅  自転車8分
■土地間口はゆとりある約8.4m!陽当たり良好!希少価値の高い土地!
■造成済みなので、いつでも建築可能
■香久山小学校・日進西中学校通学エリア!子育て世帯に人気のエリア!
■平和堂、ドラッグユタカまで徒歩5分で帰り道のお買い物も便利
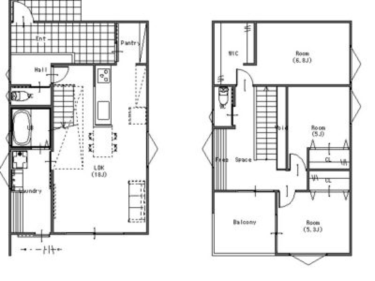
参考プラン
便利な家事動線と開放的なLDKの家
3LDK+ランドリールーム
・「家事がはかどる充実のランドリールーム」「趣味に没頭できる広い土間空間」
 「バルコニーに面した明るいスタディコーナー」など、家族それぞれの希望を叶えたプラン。
・充実のランドリールームは南側の軒下に外干しも可能。
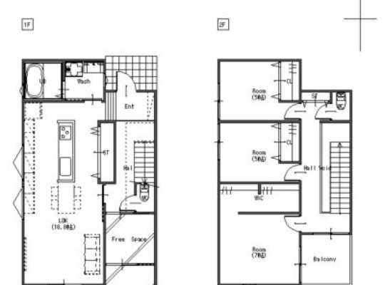
趣味に没頭できる家
3LDK+フリースペース
玄関を入ると南側の階段・吹抜け・バルコニーから光が落ちて、開放的な土間がのびる家。
1階に約3帖のフリースペースのある家。
外まで土間がつながっているので広い土間空間を利用してDIYや映画鑑賞・ヨガなど、色々な事が楽しめる家です。
ムダをそぎ落としたシンプルな家
3LDK+タタミコーナー
使いやすい動線計画、外観コーディネート、構造計画をシンプルにそぎ落とした家。
どのにいても明るさと解放感を感じるLDK。
ご家族のご要望を+αしてお住まいください。

周辺環境

梅森保育園 徒歩8分(599m)
日進市立香久山小学校 徒歩17分(1300m)
平和堂日進香久山店 徒歩5分(385m)
ロイヤルホームセンター日進香久山店 徒歩9分(700m)
梅森児童遊園 徒歩9分(653m)
ローソン日進梅森台二丁目店 徒歩10分(743m)
MiO香久山 徒歩19分(1500m)
公共交通機関
名古屋市営地下鉄鶴舞線「平針」駅    自転車8分(約 2,300 m)
日進市コミュニティバス「梅森保育園」停 徒歩 8 分(約 615 m)
名古屋市営バス「梅森台三丁目」停    徒歩 10 分(約 750 m)
保育園・幼稚園
梅森保育園     徒歩 8 分(約 599 m)
うめもりざか保育園 徒歩 11 分(約 858 m)
梅森坂幼稚園    徒歩 17 分(約 1,300 m)
小学校・中学校
日進市立香久山小学校   徒歩 17 分(約 1,300 m)
日進市立日進西中学校 徒歩 17 分(約 1,300 m)
コンビニ
ローソン日進梅森台二丁目店     徒歩 10 分(約 743 m)
セブンイレブン名古屋梅森坂5丁目店 徒歩 14 分(約 1,100 m)
買い物
平和堂日進香久山店     徒歩 5 分(約 385 m)
カネスエ浅田店       車 7 分(約 1,900 m)
ドラッグユタカ日進香久山店 徒歩 7 分(約 540 m)
公園
梅森上松児童遊園 徒歩 9 分(約 653 m)
株山中央公園   徒歩 15 分(約 1,100 m)
※記載の距離および所要時間は地図上の概測です。なお徒歩は分速80mで換算しています。
アクセス
日進市梅森町新田135番365、135番368、135番369
※カーナビによっては表示されない場合があります。

土地概要

土地価格
A区画:2,680万円 B区画:2,450万円 C区画:2,590万円
所在地
日進市梅森町新田135番365、135番368、135番369
交通
名古屋市営地下鉄鶴舞線「平針」駅 自転車約8分
日進市コミュニティバス「梅森保育園」停 徒歩 8 分
土地面積
A区画:177.63㎡ B区画:162.77㎡ C区画:180.34㎡ (A区画:53.73坪 B区画:49.23坪 C区画:54.55坪)
土地権利
所有権
建ぺい率/容積率
建ぺい率60% 容積率100%
引き渡し時期
相談
販売区画数
3区画
販売個数
3区画
総区画数
3区画
用途地域
第1種低層住居専用地域
建築条件
建築条件付き
地目
宅地・山林
その他制限事項
道路斜線、北側斜線、日影制限、砂防法、水防法、宅地造成及び特定盛土等規制法
接道
北側公道幅員約8m
設備
公営上下水道、中部電力、都市ガス
売主
株式会社トスコ
取引形態
売主
建築条件付宅地
※この土地は土地売買契約締結後3ヶ月以内に当社と住宅の請負契約を締結して頂くことを条件として、販売致します。この期間に住宅を契約しないことが確定した時、又は、住宅の請負契約が成立しなかった場合、土地売買契約は白紙となり、受領した金額は全額無利息でお返しいたします。
見学予約

CONTACT