TOSCO

日進市折戸町②

propertydata
所在地
愛知県日進市折戸町鎌ヶ寿59-11
販売価格
A区画/B区画:2,480万円
土地面積
278.80㎡(84.33坪)
アクセス
名鉄豊田線「日進」駅 徒歩12分
日進市コミュニティバス「藤塚南」 徒歩3分
地下鉄鶴舞線「赤池」駅 徒歩34分
【建築条件付き】
A区画:278.80㎡(84.33坪) 2480万円(別途造成費400万円)
B区画:278.80㎡(84.33坪) 2480万円(別途造成費400万円)

土地の特徴

■建築家と創る特別な家づくり体験
■特別プラン掲載中
■日進駅まで徒歩12分

※当物件は造成費用400万円(概算)が別途必要となります。何卒ご了承ください。

【参考プラン公開中】
建築家と創る特別な家
<参考価格>
A棟:5780万円/B棟:5480万円
※土地代・造成費・消費税込の参考価格です。

【尾張旭市平子町に見学可能なモデルハウスあり】
モデルハウス見学可能です。お気軽にご相談ください。

◆日進市折戸町◆
名鉄日進駅まで徒歩約12分
プライムツリー赤池まで車約6分

\最大155万円お得!補助金&トスコ独自サービス/
みらいエコ住宅2026事業発表!トスコの長期優良住宅仕様なら、対象者(※)は75万円の補助を受けられます。
さらに、今なら期間中のご成約でトスコから80万円分の賞品をプレゼント!
トータル155万円お得に家を建てるチャンスです!補助金は予算に限りがあるため、早めのご検討をお願いいたします。
(※子育て世帯又は若者夫婦世帯が対象です)

区画

278.80㎡(84.33坪)
【建築条件付き】
A区画:278.80㎡(84.33坪) 2480万円(別途造成費400万円)
B区画:278.80㎡(84.33坪) 2480万円(別途造成費400万円)
特徴ピックアップ
南側道路面す, 前道6m以上, 前面棟無, 都市ガス, 敷地40坪以上, 駅近, 参考プランあり, 建築条件付き土地, コンビニエンスストア徒歩10分以内, 駅徒歩 15分以内
参考プラン
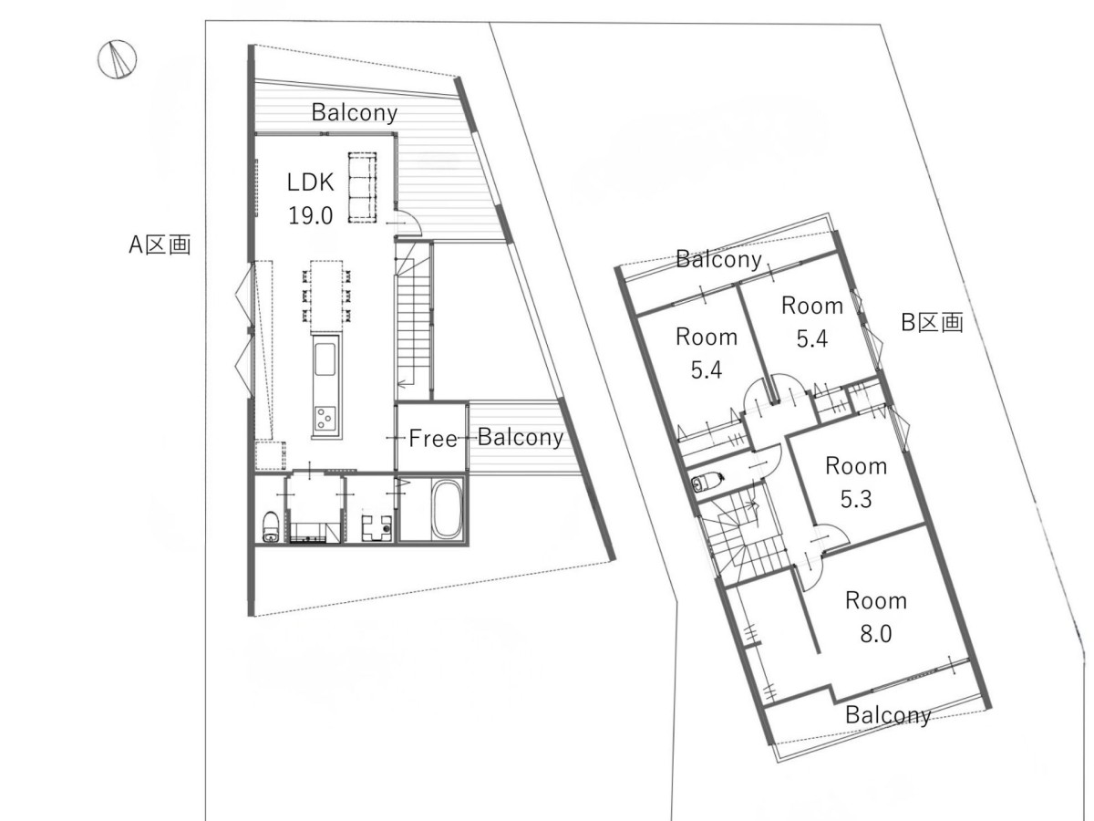
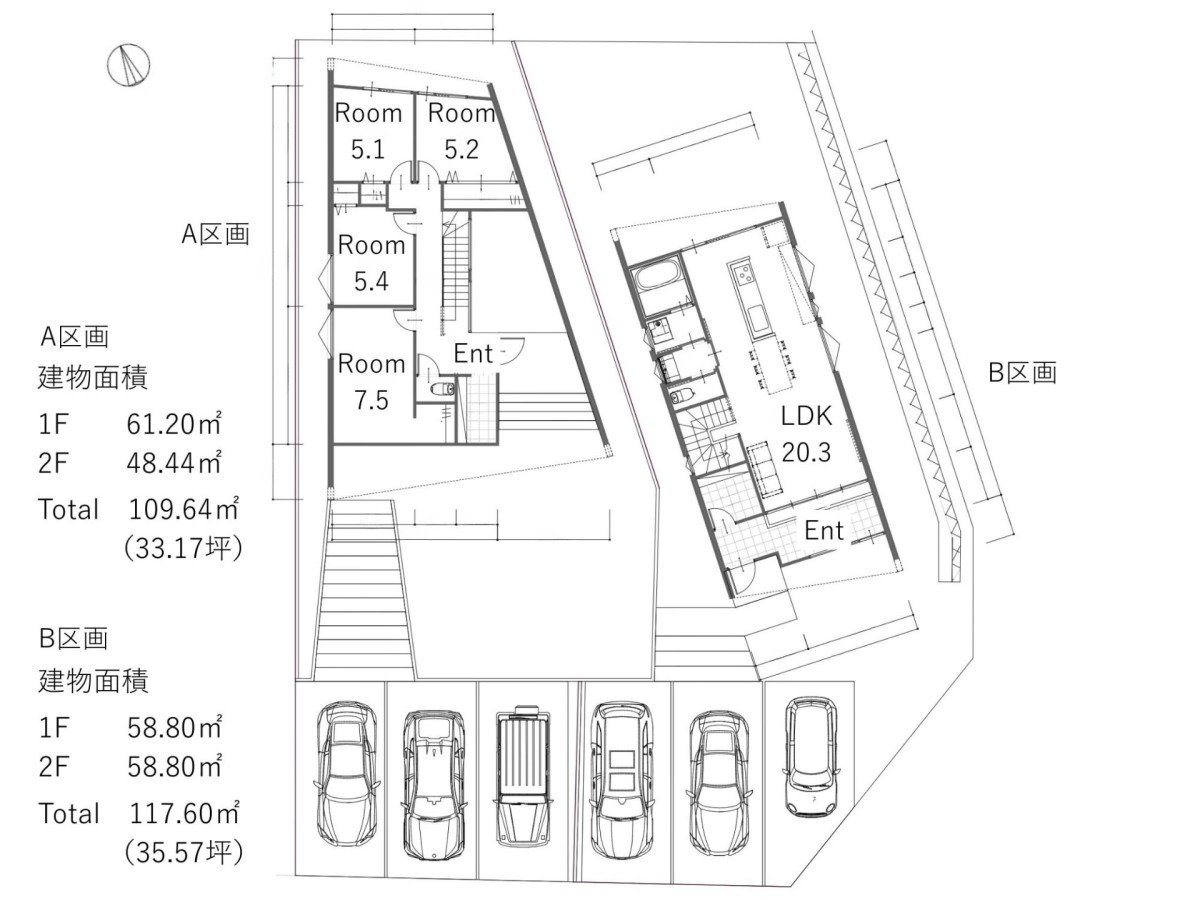
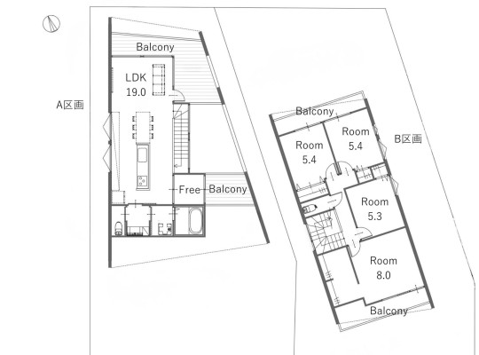
A棟/B棟 1F間取り
4LDK
A棟は1Fが居室空間となっており、エントランスのインパクトは抜群。B棟は広い土間エントランスが印象的。
【参考価格】
A棟:5780万円/B棟:5480万円(土地代・造成費・消費税込の参考価格)
A棟/B棟 2F間取り
4LDK
A棟は2Fにリビングを備えており、2箇所あるバルコニーの使い方がワクワクする間取り。B棟にも北側バルコニーを備えており、ONとOFFの外空間を楽しめます。
【参考価格】
A棟:5780万円/B棟:5480万円(土地代・造成費・消費税込の参考価格)

周辺環境

南部保育園(455m/徒歩6分)
日進旭丘幼稚園(2000m/徒歩25分)
南小学校(930m/徒歩12分)
日進中学校(2000m/徒歩25分)
フィール日進店(1200m/徒歩15分)
サンドラッグ日進駅前店(896m/徒歩12分)
名鉄豊田線「日進」駅(941m/徒歩12分)
日進市コミュニティバス「藤塚南」バス停(181m/徒歩3分)
日進市役所(1700m/徒歩22分)
※記載の距離および所要時間は地図上の概測です。なお徒歩は分速80mで換算しています。
アクセス
愛知県日進市折戸町鎌ヶ寿59-11
※カーナビによっては表示されない場合があります。

土地概要

土地価格
A区画/B区画:2,480万円
所在地
愛知県日進市折戸町鎌ヶ寿59-11
交通
名鉄豊田線「日進」駅 徒歩12分
日進市コミュニティバス「藤塚南」 徒歩3分
地下鉄鶴舞線「赤池」駅 徒歩34分
土地面積
278.80㎡ (84.33坪)
土地権利
所有者
建ぺい率/容積率
建ぺい率30% 容積率50%
引き渡し時期
相談
販売区画数
2
販売個数
2
総区画数
2
用途地域
第1種低層住居専用地域
建築条件
建築条件付き
地目
山林
その他制限事項
道路斜線、隣地斜線、北側斜線、絶対高さ制限10 m、日影制限、宅地造成及び特定盛土等規制法、砂防法
接道
南側公道幅員約16m/南西公道幅員約4m/南東公道幅員約4m
設備
公営上下水道、中部電力、都市ガス
売主
株式会社トスコ
取引形態
売主
建築条件付宅地
※この土地は土地売買契約締結後3ヶ月以内に当社と住宅の請負契約を締結して頂くことを条件として、販売致します。この期間に住宅を契約しないことが確定した時、又は、住宅の請負契約が成立しなかった場合、土地売買契約は白紙となり、受領した金額は全額無利息でお返しいたします。
見学予約

CONTACT