TOSCO

江南市宮後町砂場北③【建築条件なし】 自然を身近に感じられるワンフロアー住宅

propertydata
所在地
愛知県江南市宮後町砂場北39
販売価格
B区画:1,780万円
土地面積
174.07㎡(52.65坪)
アクセス
名鉄犬山線「江南」駅 徒歩 11分(約838m)
名鉄犬山線「柏森」駅 徒歩 29分(約2,300m)
A棟:ご成約

【建築条件なし】
B区画: 1,780万円 敷地面積 174.07㎡(52.65坪)
C区画: ご成約

土地の特徴

平屋建築に最適の広さで余裕のある土地です
江南駅まで徒歩11分!特急で18分で名古屋駅着!

【建築条件なし土地】
TOSCOで建築も可能です。

【平屋建築に最適な土地】
ワンフロアにすべての生活空間を納める必要がある平屋は、同じ延床面積をもつ2階建住宅よりも広い面積の土地が必要です。広さに余裕がある土地なら間取りの自由度も上がり、伸び伸びと暮らせる理想の住まいが完成するでしょう

POINT

tosco point. 01

外まで広がるワンフロアが楽しい平屋。

大きな窓が心地よい、リビング。家全体を見渡せるので、自然と家族の会話も弾みます
tosco point. 02

中庭も充実

休日には中庭でBBQなど また、中庭はお部屋への風通し、おうちの中に光を取り入れるための重要な役割があります

区画

174.07㎡(52.65坪)
A棟:ご成約

【建築条件なし】
B区画: 1,780万円 敷地面積 174.07㎡(52.65坪)
C区画: ご成約
特徴ピックアップ
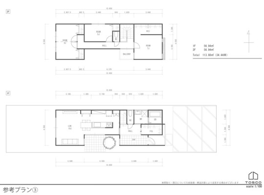
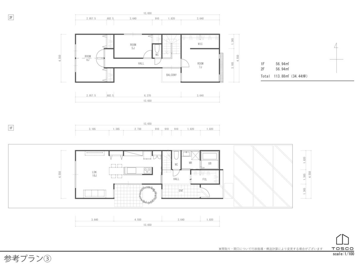
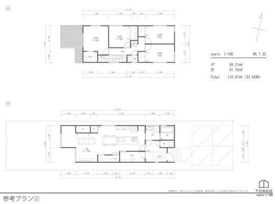
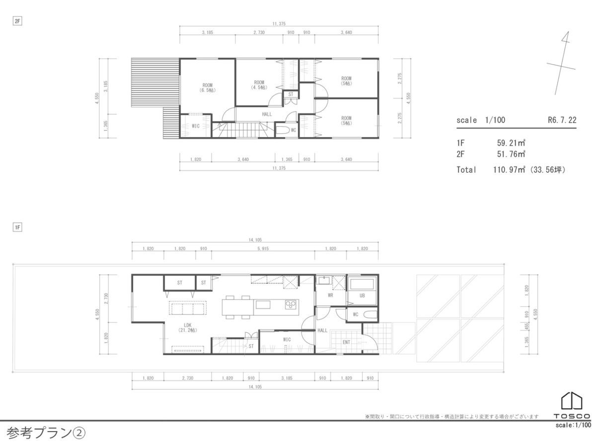
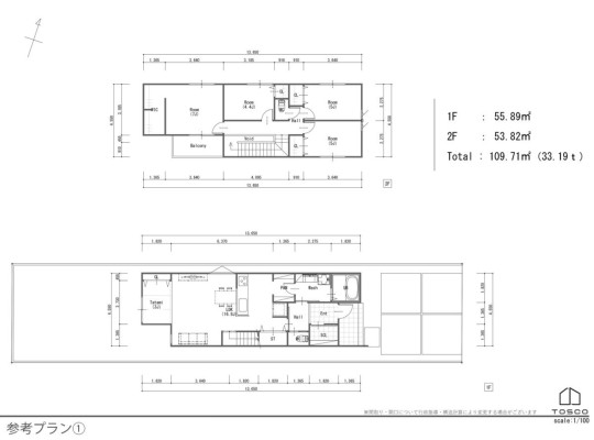
更地渡し, スーパー 徒歩10分以内, 閑静な住宅地, 前道6m以上, 整形地, 都市ガス, 敷地40坪以上, 公園が近い, 駅近, 参考プランあり, 区画内にモデルハウスあり, 警察署が近所, コンビニエンスストア徒歩10分以内, 駅徒歩 15分以内

周辺環境

名鉄犬山線「江南」駅 徒歩11分(約838m)
あずま保育園 徒歩8分 午前8時から午後7時間まで
江南市立古知野町東小学校 徒歩11分
江南市立古知野中学校 徒歩9分
セブンイレブン江南宮後町砂場店 徒歩4分
大阪屋ショップ江南店 徒歩15分
中央公園 徒歩8分
※記載の距離および所要時間は地図上の概測です。なお徒歩は分速80mで換算しています。
アクセス
愛知県江南市宮後町砂場北39
※カーナビによっては表示されない場合があります。

土地概要

土地価格
B区画:1,780万円
所在地
愛知県江南市宮後町砂場北39
交通
名鉄犬山線「江南」駅 徒歩 11分(約838m)
名鉄犬山線「柏森」駅 徒歩 29分(約2,300m)
土地面積
174.07㎡ (52.65坪)
土地権利
所有権
建ぺい率/容積率
建ぺい率60% 容積率200%
引き渡し時期
相談
販売区画数
1区画
総区画数
3区画
用途地域
第1種住居地域
建築条件
建築条件なし
地目
その他制限事項
道路斜線・隣地斜線、日影制限、農地法、特定都市河川浸水被害対策法、都市再生特別措置法
接道
東側公道幅員約 6m
設備
公営上下水道、中部電力、都市ガス
売主
株式会社トスコ
取引形態
売買
見学予約

CONTACT