TOSCO

あま市木田池ノ島② 名鉄木田駅徒歩4分。小・中学校近く、便利な住環境

propertydata
所在地
あま市木田池ノ島111番2
販売価格
980万円
土地面積
156.83㎡(47.44坪)
アクセス
名鉄津島線「木田」駅 徒歩4分
好アクセス
名鉄津島線で名古屋駅に直結。通勤が便利だから朝の時間に余裕が生まれます。
特急、急行、準急が停まります!
生活
スーパー、銀行、ドラッグストアなどが揃った利便性
子育て
学校や公園、文化施設が徒歩圏
全2区画(最終1邸)

A区画 敷地面積:156.83㎡(47.44坪)

<A区画セレクトプラン>
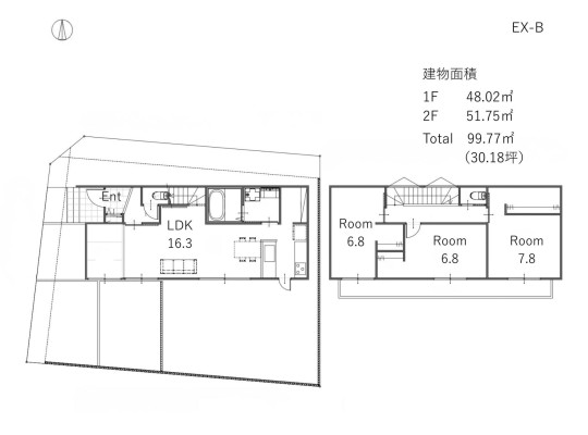
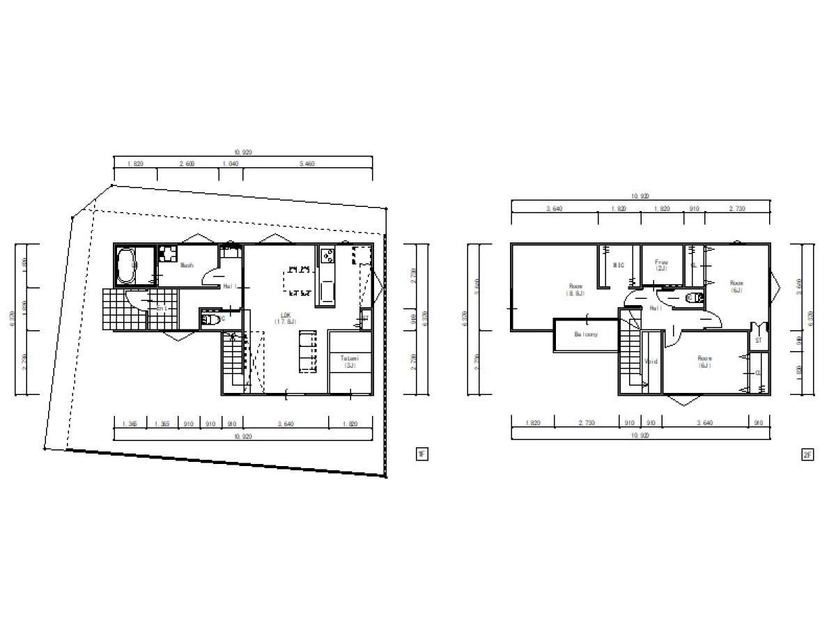
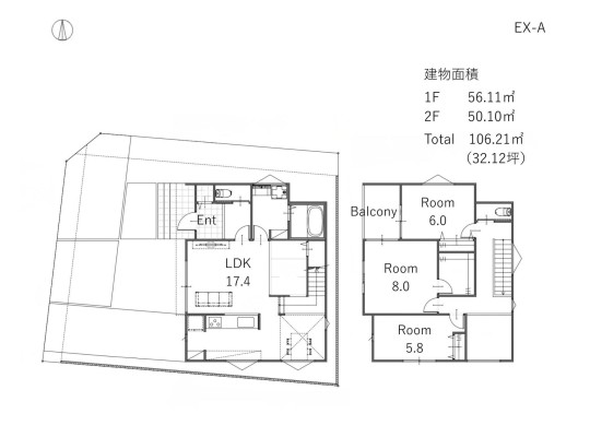
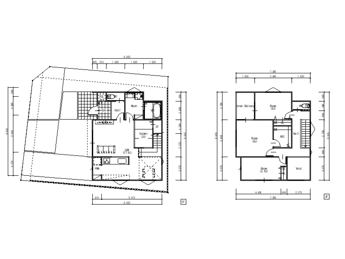
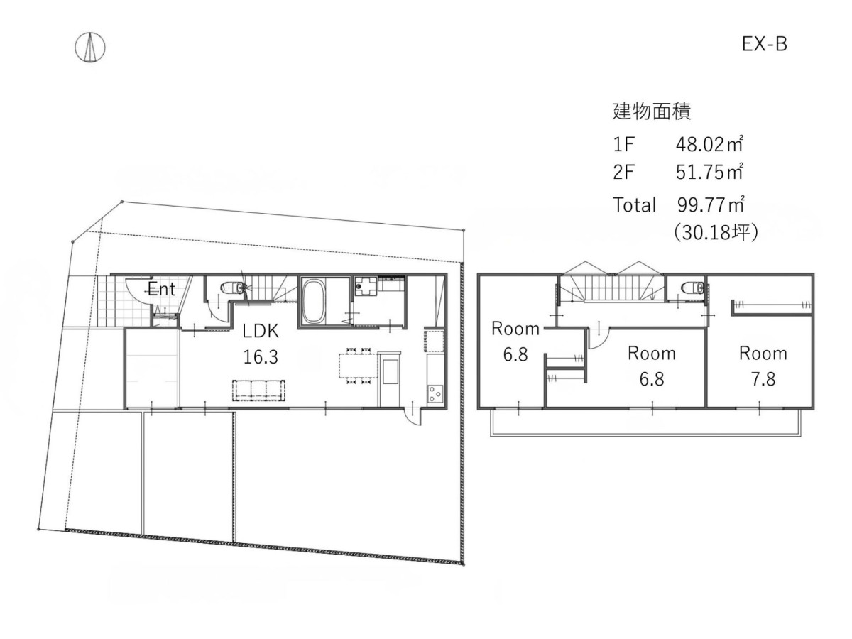
プラン1(EX-A):建物面積106.21㎡(32.12坪)
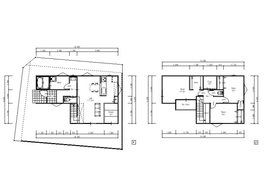
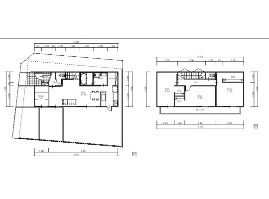
プラン2(EX-B):建物面積99.77㎡(30.18坪)
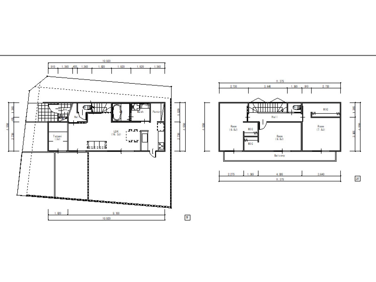
プラン3(EX-C):建物面積106.15㎡(32.11坪)

土地の特徴

名鉄津島線木田駅から徒歩4分の好立地
名鉄名古屋駅まで17分! 通勤やお出かけも便利ですよ♪

通勤・通学しやすい駅近で、スーパーやコンビニも近く、静かで長閑な暮らしやすい環境です。

■おすすめPOINT
・特急、急行、準急が停車する名鉄津島線「木田」駅まで徒歩4分
・小学校・中学校まで徒歩6分でお子様の通学も便利
・ナフコトミダ木田店まで徒歩6分
・コンビニまで徒歩7分

■TOSCOの建築条件付き土地とは?
注文住宅をてがけているトスコで住宅を建築していただく条件で土地販売しています。
コストを抑えて土地を探している方におすすめ。
宅地造成済のため、スピード感をもって着工可能!

あま市・大治町・中川区にてリアルサイズの「まちかどモデルハウス」を多数見学できます。

\みらいエコ住宅2026事業発表!/
トスコの長期優良住宅仕様なら、対象者(※)は75万円の補助を受けられます。
補助金は予算に限りがあるため、早めのご検討をお願いいたします。
(※子育て世帯又は若者夫婦世帯が対象です)

POINT

tosco point. 01

今日のご飯は一緒に何作る?
品揃え豊富なスーパー

tosco point. 02

朝はゆったり準備ができる
駅まで徒歩4分

区画

156.83㎡(47.44坪)
全2区画(最終1邸)

A区画 敷地面積:156.83㎡(47.44坪)

<A区画セレクトプラン>
プラン1(EX-A):建物面積106.21㎡(32.12坪)
プラン2(EX-B):建物面積99.77㎡(30.18坪)
プラン3(EX-C):建物面積106.15㎡(32.11坪)
特徴ピックアップ
更地渡し, スーパー 徒歩10分以内, 市街地が近い, 陽当り良好, 閑静な住宅地, 角地, 整形地, 緑豊かな住宅地, 都市近郊, 小学校 徒歩10分以内, 平坦地, 敷地40坪以上, 駅近, 参考プランあり, 建築条件付き土地, 角地・日当たり・風通し良
■TOSCOの建築条件付き土地とは?
注文住宅をてがけているトスコで住宅を建築していただく条件で土地販売しています。
トスコの土地販売は仲介手数料は不要です。コストを抑えて土地を探している方におすすめ。
宅地造成済のため、スピード感をもって着工可能!

周辺環境

名鉄津島線「木田」駅(320m/徒歩4分)
あま市立美和小学校(454m/徒歩6分)
あま市立美和中学校(422m/徒歩6分)
ナフコ 木田店(407m/徒歩6分)
セブンイレブンあま木田店(739m/徒歩10分)
うおたショッピングセンター(115m/徒歩2分)
※記載の距離および所要時間は地図上の概測です。なお徒歩は分速80mで換算しています。
アクセス
あま市木田池ノ島111番2
※カーナビによっては表示されない場合があります。

土地概要

土地価格
980万円
所在地
あま市木田池ノ島111番2
交通
名鉄津島線「木田」駅 徒歩4分
土地面積
156.83㎡ (47.44坪)
土地権利
所有権
建ぺい率/容積率
建ぺい率80% 容積率200%
引き渡し時期
販売区画数
1区画
総区画数
2区画
用途地域
近隣商業地域
建築条件
建築条件付き
地目
宅地
その他制限事項
準防火地域、道路斜線制限、隣地斜線制限、日影規制
接道
西側公道幅員約1.8m
北側公道幅員約1.9m
設備
公営上下水道、電気
都市計画法以外の規制
道路斜線・北側斜線・日影規制
売主
株式会社ライフサワダ
取引形態
販売代理
建築条件付宅地
※この土地は土地売買契約締結後3ヶ月以内に当社と住宅の請負契約を締結して頂くことを条件として、販売致します。この期間に住宅を契約しないことが確定した時、又は、住宅の請負契約が成立しなかった場合、土地売買契約は白紙となり、受領した金額は全額無利息でお返しいたします。
見学予約

CONTACT