TOSCO

Ready-built house

中川区野田① 2月完成予定<限定1邸>

propertydata
所在地
名古屋市中川区野田2丁目55番1、2
金額
未定(税込)
間取り
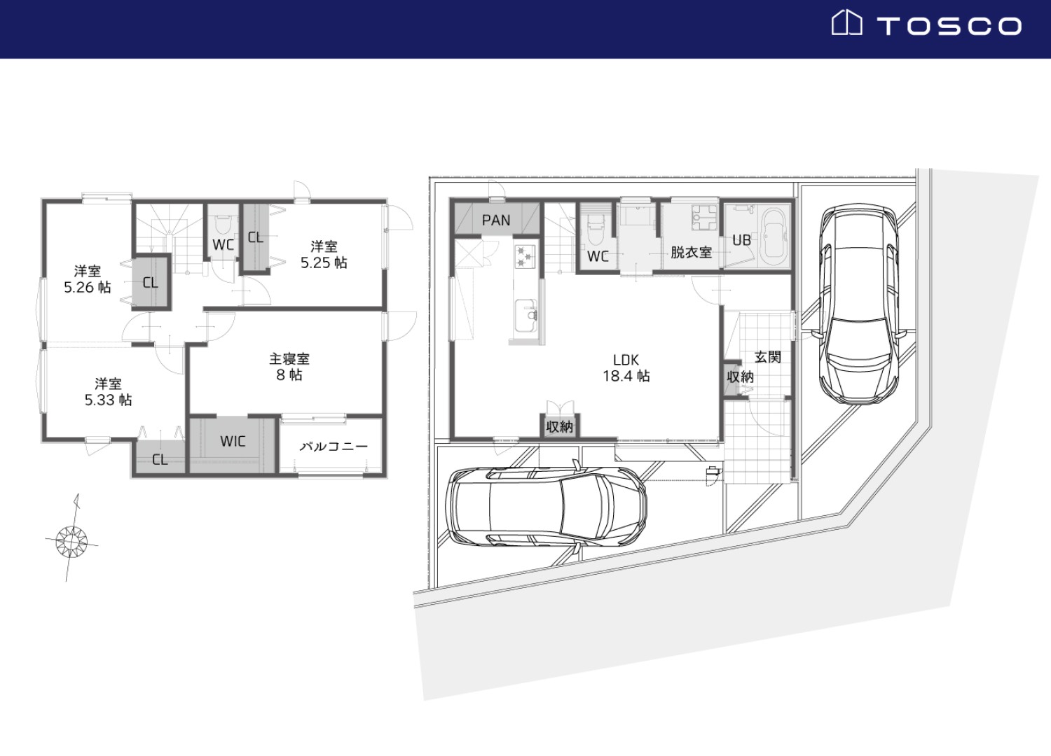
4LDK
建物面積
104.54㎡(31.62坪)
土地面積
112.06㎡(33.89坪)
アクセス
JR関西本線「八田」駅  徒歩 15 分
地下鉄東山線「高畑」駅 徒歩 18 分
上へ戻る

01物件の特徴

■2月完成予定■
JR関西本線「八田」駅 徒歩15分。名古屋まで好アクセス

◆おすすめポイント◆
・家族の時間をゆったり過ごせる開放的な18.4帖の広々LDK
・キッチン横にパントリー付き。食材や日用品のストックに便利で、キッチンがいつもスッキリ
・JR関西本線「八田」駅まで徒歩15分、自転車4分で通勤・通学に便利な『駅近物件』
・JR、近鉄、地下鉄3路線利用可能。八田駅から名古屋駅まで最短6分。
・徒歩10分圏内に、スーパー、ドラッグストア、コンビニがあり“ちょっと買いたい”時もすぐに行けます
・徒歩2分の場所にある「野田公園」は、遊具が充実した広々とした公園。お子さまと思いきり遊べるのはもちろん、ランニングやウォーキングにもぴったりのスポットです。

■TOSCOの分譲住宅■
1.天井高2.7mの家
TOSCOの家はリビング天井高2.7mが標準仕様。一般的には2.4mが多いなか、約30cm高く設定しています。高い天井の空間では、開放感を得られたり、創造的な思考が広がる効果があると言われています。家族の時間を大切にしたいからこそ、皆の集まるリビングの天井を高~くしました。

2.断熱材と遮熱シートの二重断熱構造
断熱材は吹付ウレタン断熱材を使用。壁内に隙間なく断熱材を敷き詰めることで、熱欠損を防ぎます。加えて、透湿防水遮熱シートで家全体を包み込むことで輻射熱から室内環境を守ります。家族の健康を守るダブルプロテクト仕様。

3.同じ建物は存在しない、唯一無二の邸宅
TOSCOの分譲住宅は同じデザインがふたつと存在しません。設計士が一邸一邸、その土地に合うと考えられるデザインで描いているためです。見た目だけではなく、どのように機能するのか。TOSCOの住宅は暮らしに寄り添ったデザインであるように丁寧に創りあげています。

02間取り・区画

03物件特徴・こだわり

  • JR関西本線
    「八田」駅
    徒歩15分
  • JR、近鉄
    地下鉄の3路線
    利用可能
  • 徒歩10分圏内
    買い物
    充実
  • 天井高
    2.7m
  • 吹付
    ウレタン
    断熱材
  • 長期優良
    住宅

04周辺環境・地図

名古屋市野田小学校 徒歩 7 分(約 550 m)
名古屋市立一柳中学校 徒歩 19 分(約 1500 m)
アオキスーパー八田店 徒歩 6 分(約 450 m)
V・drug中川野田店 徒歩 2 分(約 130 m)
ローソン中川野田二丁目店 徒歩 6 分(約 450 m)
野田公園 徒歩 2 分(約 140 m)
JR関西本線「八田」駅 徒歩 15 分
保育園・幼稚園
だいちのこどもえん 徒歩 10 分
八社あいわ保育園  徒歩 12 分
岩塚第一幼稚園   徒歩 12 分
学校
名古屋市立野田小学校 徒歩 7 分
名古屋市立一柳中学校 徒歩 19 分
コンビニ
ローソン中川野田二丁目店   徒歩 6 分
セブンイレブン名古屋野田町店 徒歩 10 分
買い物
アオキスーパー八田店  徒歩 6 分
フィールアイアイプラザ 徒歩 8 分
V・drug中川野田店   徒歩 2 分
病院
小寺医院      徒歩 4 分
中村内科クリニック 徒歩 7 分
アクセス
名古屋市中川区野田2丁目55番1、2

05設備・構造

キッチン(Takara standard)

ホーロークリーンキッチンパネル
・水まわりと相性ぴったり。ホーローのいいところ
<磁石がくっつく><熱に強い><水に強い><酸や塩分に強い><汚れがつきにくい><硬く、傷つきにくい>
作業スペースも広く、食洗機・浄水器を搭載したシステムキッチンです。
人造大理石ワークトップ/カウンター高さ85センチ/浄水機付き/食器洗い乾燥機/シンク・コンロキャビネット/3口ガラストップコンロ

食器洗い乾燥機

約5人分の食器を一度に洗う事ができる食器洗乾燥機は手洗いに比べて節水効果あり。高温で洗浄できるため汚れを落としやすく、小さなお子様がいるご家庭では食器の除菌もできます。洗浄だけでなく、乾燥まで済ませられるので時短にも。夕食の後は食洗機に片付けを任せて家族団らんの時間をお楽しみください。

バスルーム(Takara standard)

1日の疲れを癒す浴室は、お子様と一緒に入る事ができるゆったりサイズです。
浴室全体を保温材で包み込むことであたたかい浴室を実現するホーロークリーン浴室パネル。洗い場は1.5mmと溝幅が広く汚れを落としやすい構造。排水口もお手入れカンタン!

パウダールーム(LIXIL)

バックガードがミラー下まであり洗面ボウルと一体成形になったキレイアップカウンター上から水が出るキレイアップ水栓は水栓周りに水がたまらないので清潔です。

トイレ(INAX)

パワーストリーム洗浄は、強力な水流が便器鉢内のすみずみまで廻り、少ない水でもしっかり汚れを洗い流します。フチレス形状は、フチをまるごとなくし、サッとひと拭き。

ベタ基礎

地震で地面が揺れたとき、真っ先に振動が伝わるのが基礎部分です。ベタ基礎とは、建築物や設備機械の直下全面を板状の鉄筋コンクリートにした基礎をいいます。不同沈下に対する耐久性や耐震性を増やすことが可能になります。TOSCOでは耐震性で一番大切である基礎部分の配筋を1邸1邸計算し、家の耐震力をあげています。

天井高2.7m

TOSCOでは高い耐震性と堅牢性を確保しつつ、天井高2.7mを標準仕様としています。天井が高くなると開放感が生まれ、居心地の良い空間となります。また、窓の位置を高く設置することができるので部屋の奥まで太陽の光が届きます。

2.2mハイサッシ

一般的な木造住宅の標準的な天井高は2.2~2.4mですが、TOSCOでは天井高2.7mが標準仕様です。天井高に合わせて2.2mのハイサッシを採用する事で部屋の奥まで光が届きます。TOSCOの特徴である「採光性」・「開放感」・「通気性」にこだわった間取り設計を是非現地にてご体感ください!

発砲ウレタン断熱材

トスコの家では熱損失をゆるしません。水で発砲させ、躯体で自己接着し隙間を作らない工法です。経年劣化が少なく長時間に渡って優れた気密断熱性を維持することができます。魔法瓶のようにお家をまるごと断熱。
家の内側を隅々まですっぽりと包み込み、外の熱気や寒気をシャットアウト!1年を通して、快適な住環境を保つことができます。

06物件概要

価格
未定(税込)
所在地
名古屋市中川区野田2丁目55番1、2
交通
JR関西本線「八田」駅  徒歩 15 分
地下鉄東山線「高畑」駅 徒歩 18 分
土地面積
112.06㎡ (33.89坪)
土地権利
所有権
建ぺい率/容積率
建ぺい率60% 容積率200%
構造
木造2階建て(在来工法)
完成予定
2026年2月
引き渡し時期
相談
施工
株式会社ライフサワダ
販売区画数
1
総区画数
1
用途地域
第1種中高層住居専用地域
地目
宅地
その他制限事項
日影制限
概要・特記事項
道路斜線・隣地斜線、20m高度地区、都市再生特別措置法、景観法、都市緑地法、津波防災地域づくりに関する法律
準防火地域
接道
南側公道幅員約6m、東側公道幅員約5.4m
設備
公営上下水道、中部電力、都市ガス
建築確認番号
第KS125-0420-56911号
売主
株式会社トスコ
取引形態
売主 
イベント情報

実際に行ってみよう!
トスコのイベント情報はこちら

TOSCO オープンハウス
日程|毎週土日祝
時間|9:00〜18:00 
※ 完全予約制となります。事前に必ずお問い合わせください。
近隣の物件はこちら
モデルハウス見学会開催中

トスコのこと、もっと

上へ戻る